YWY 為冶金熱軋機械配套業績
◆YWY為五礦營口中板廠高速線材生產線610、480、380軋機常年配套工作輥軸承、止推軸承
◆YWY為韶關鋼鐵棒一、棒二、棒三分廠常年配套線棒材軋機軸承
◆YWY長期穩定為首鋼一線材350、450、550軋機配套工作輥軸承
◆YWY長期為中冶賽迪、中冶京誠瑞信公司工程項目配套軸承,成為其工程項目線材、棒材軋機工作輥、支撐輥軸承首選供應配套商
◆YWY為常州中天鋼鐵350/450/550線棒材生產線常年全線配套熱軋軸承
![]() | ![]() |
![]() | ![]() | ![]() | ![]() | ![]() |
![]() | ![]() | ![]() | ![]() |
YWY H型鋼軋機設備軸承
★適用設備:各類小、中、大型型鋼軋機;
★軸承安裝部位:軋機水平輥、立輥,型鋼矯直機、矯直輥的輥頸部位;
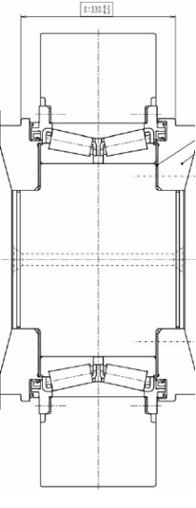
★軸承結構形式:雙列(密封)、四列(密封)圓錐滾子軸承;四列圓柱滾子軸承;
★典型系列及尺寸范圍:
雙列圓錐滾子軸承:TDO、TDI型 d=100~D=1960 mm
四列圓錐滾子軸承:TQI型 d=100 ~ D=1960 mm
四列圓柱滾子軸承:FC、FCD、FCDP型
d=100~D=1600 mm
使用實績:萊鋼、馬鋼、日照鋼鐵、河北興華等鋼鐵企業的H型鋼軋機;
| ![]() |
![]() |
![]() | ![]() | ![]() |
YWY 軸承在H型鋼軋機立輥廣泛應用
萊蕪 鋼鐵— H 型鋼 46T504125GWP
日照 鋼鐵— H 型鋼 M252348/HM252310CD
馬鞍山鋼鐵— H 型鋼 332255/DB

